设计案例:
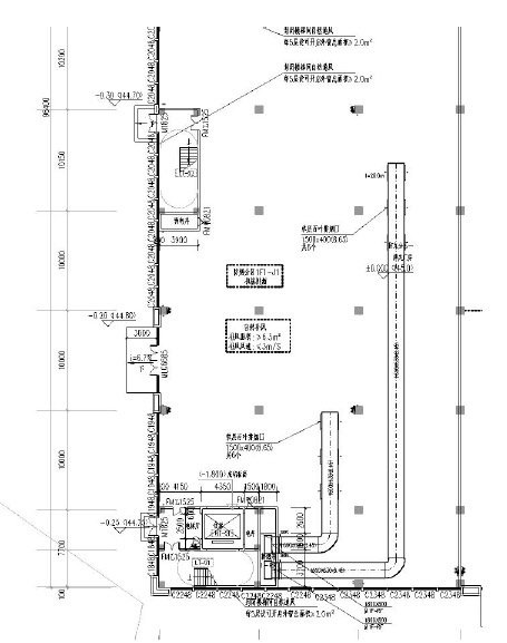
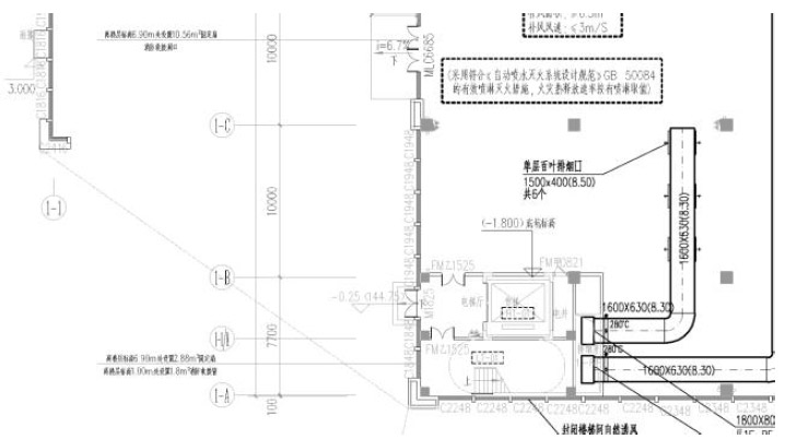
某丙类厂房项目建筑面积大于25000㎡,需按规范要求在外墙或屋顶设置固定窗。
处理意见:
按意见在图纸上明确标注固定窗位置及大小。
规范名称及条文内容:
《建筑防烟排烟系统技术标准》GB 51251-2017
4.1.4 下列地上建筑或部位,当设置机械排烟系统时,尚应按本标准第4.4.14 条~第4.4.16 条的要求在外墙或屋顶设置固定窗:
1 任一层建筑面积大于2500m2 的丙类厂房(仓库);
4.4.14 按本标准第4.1.4 条规定需要设置固定窗时,固定窗的布置应符合下列规定:
1 非顶层区域的固定窗应布置在每层的外墙上;
2 顶层区域的固定窗应布置在屋顶或顶层的外墙上,但未设置自动喷水灭火系统的以及采用钢结构屋顶或预应力钢筋混凝土屋面板的建筑应布置在屋顶。
4.4.15 固定窗的设置和有效面积应符合下列规定:
1 设置在顶层区域的固定窗,其总面积不应小于楼地面面积的2%。
2 设置在靠外墙且不位于顶层区域的固定窗,单个固定窗的面积不应小于1m2,且间距不宜大于20m,其下沿距室内地面的高度不宜小于层高的1/2。供消防救援人员进入的窗口面积不计入固定窗面积,但可组合布置。
3 设置在中庭区域的固定窗,其总面积不应小于中庭楼地面面积的5%。
4 固定玻璃窗应按可破拆的玻璃面积计算,带有温控功能的可开启设施应按开启时的水平投影面积计算。
4.4.16 固定窗宜按每个防烟分区在屋顶或建筑外墙上均匀布置且不应跨越防火分区。
解析:
4.1.4 在大型公共建筑(商业、展览等)、工业厂房(仓库)等建筑中,因为建筑的使用功能需求而存在大量的无窗房间。在近几年的多起火灾案例中反映出仅设置机械排烟系统不能满足火灾中排烟排热的需求。为了在火灾初期不影响机械排烟,又能在火灾规模较大后及时地排出烟和热,因此在设置机械排烟系统的无窗房间要求加设可破拆的固定窗。固定窗的设置既可为人员疏散提供安全环境,又可在排烟过程中导出热量,防止建筑物在高温下出现倒塌等恶劣情况,并为消防队员扑救时提供较好的内攻条件。
此外,在一些工业建筑中,人员较少但可燃物多、火灾热释放速率大,综合考虑火灾中的实际情况并经过实际调研后,本标准允许采用可熔材料制作的固定窗进行排烟。但应注意保证可熔材料在平时环境中不会熔化,且火灾时熔化后熔滴物不会引燃其他可燃物。
但需要注意的是,在设计时,固定窗不能作为火灾初期保证人员安全疏散的排烟窗。
4.4.14~4.4.17 这几条对固定窗的设置位置、面积指标做了规定。固定窗的设置是为了在可燃物较多、预计火灾功率较大的场所,弥补机械排烟的不足,以保证快速、有效且可持续地排出火场热烟。因此只要有设置条件的外墙或屋顶都宜均匀布置固定窗。在不影响建筑使用功能的前提下,本标准对固定窗的面积指标做了相应的要求。
附图:

收藏我们
在线留言
站点地图
全国咨询热线 : 
